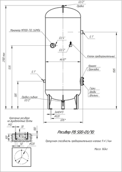
Ресивер вертикальный воздушный РВ 500-01/10 объемом 500 л рассчитан на работу при давлении 10 атм и температуре от - 40 до + 100 °C, изготовлен из стали 09Г2С с толщиной стенок 5 мм. Габариты составляют 63 х 63 х 206 см, масса 165 кг. Наружное покрытие - порошковая полиэфирная краска RAL 5010. Срок службы - 10 лет. Расчетное число циклов нагружения - 4,9 х 104.
Конструкция ресивера РВ 500-01/10 предусматривает проведение технического освидетельствования, обслуживания, ремонта, контроля состояния отдельных узлов. Манометр позволяет контролировать давление при обслуживании, а предохранительный клапан обеспечивает дополнительную безопасность эксплуатации. Благодаря высокому качеству материалов и подтвержденной расчетами прочности, ресивер может эксплуатироваться с заданными рабочими характеристиками в течение всего срока службы.
Перед запуском в эксплуатацию ресивер должен пройти первичное техническое освидетельствование ответственным лицом. При первичном освидетельствовании необходимо:
- проверить представленную техническую документацию;
- провести визуальный контроль наружной поверхности ресивера;
- проверить оснащенность контрольно-измерительными приборами и предохранительными устройствами в соответствии с требованиями технической документации;
- проверить соответствие монтажа требованиям технической документации.
Периодическое техническое освидетельствование проводятся с целью установления исправности ресивера и возможности его дальнейшей эксплуатации. При периодических освидетельствованиях необходимо:
а) проверять техническую документацию - не реже раза в год;
б) производить наружный осмотр всех сварных швов и поверхности ресивера — paз в два года;
в) производить внутренний осмотр коррозионного состояния стенок ресивера, при необходимости провести измерительный контроль толщины стенок ресивера — раз в два года;
г) провести гидравлическое испытание пробным давлением - через 8 лет (в последующем – по результатам диагностирования ресивера). Гидравлическое испытание должно проводиться только при удовлетворительных результатах визуального и измерительного контроля.
Внеочередное освидетельствование ресивера, находящегося в эксплуатации, проводят в следующих случаях:
- если ресивер не эксплуатировался более 12 месяцев;
- если ресивер был демонтирован и установлен на новом месте;
- если произведены реконструкция или ремонт ресивера с применением сварки или пайки элементов, работающих под давлением;
- после происшедшего инцидента или аварии ресивера;
- по предписанию ответственного за осуществление производственного контроля за соблюдением требований промышленной безопасности при эксплуатации ресивера.
Ремонт ресивера заключается:
- в обеспечении работоспособного состояния;
- в восстановлении защитного покрытия;
- замене арматуры, контрольно-измерительных приборов и предохранительных устройств, состояние которых не обеспечивает надежность их дальнейшей работы.
До начала производства работ ресивер должен быть отсоединен от воздухопроводов, продут, при необходимости просушен. Не допускается ремонт ресивера, находящегося под давлением.
